Уважаемые соседи, подскажите пожалуйста:
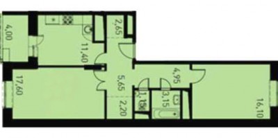
1. У нас двухкомнатная распошонка. Кто-нибудь делал разделение гостиной для увеличения кухни? Т.е. кухня станет буквой «г» за счёт уменьшения гостиной с возведением стены разделяющей гостиную на две комнаты.
2. Где провод звонка во входную дверь?
3. У всех вводной электрический кабель к автоматам без изоляционной оболочки(т.е. в гофре идут отдельные провода)?
4. В УК при выдаче ключей сказали, что за бункер 10000 с нас. Это со всех у кого квартиры без отделки такой взнос требуют?
5. Меняли ли вы трубы для отопления и водоснабжения от застройщика? В смысле какого они качества?
Уважаемые соседи!
Не забывайте заказывать пропуски на автомобили ваших гостей.
Телефон КПП: 8(926)076-76-78
Не забывайте заказывать пропуски на автомобили ваших гостей.
Телефон КПП: 8(926)076-76-78
Вопросы по ремонту квартиры без отделки
-
AlexanderVasilev
- Новосёл
- Сообщения: 31
- Зарегистрирован: 05 мар 2018, 07:24
- Этаж: 17
Вопросы по ремонту квартиры без отделки
____________
С Уважением,
Александр
С Уважением,
Александр
-
Solar Eclipse
- Свой
- Сообщения: 296
- Зарегистрирован: 15 ноя 2017, 11:58
- Секция: 2
Re: Вопросы по ремонту квартиры без отделки
AlexanderVasilev писал(а):Уважаемые соседи, подскажите пожалуйста:
1. У нас двухкомнатная распошонка. Кто-нибудь делал разделение гостиной для увеличения кухни? Т.е. кухня станет буквой «г» за счёт уменьшения гостиной с возведением стены разделяющей гостиную на две комнаты.
2. Где провод звонка во входную дверь?
3. У всех вводной электрический кабель к автоматам без изоляционной оболочки(т.е. в гофре идут отдельные провода)?
4. В УК при выдаче ключей сказали, что за бункер 10000 с нас. Это со всех у кого квартиры без отделки такой взнос требуют?
5. Меняли ли вы трубы для отопления и водоснабжения от застройщика? В смысле какого они качества?
На все вопросы не смогу ответить)
Мы меняли всю проводку и вводной кабель ( если не ошибаюсь).
Мы поменяли все трубки отопления, батареи, трубы водоснабжения. В общем сделали все с нуля. У нас без воздействия на батарею - вырвало подводку а батарее. Хорошо мы в тот момент на квартире были. Иначе была бы беда. Проверьте свои подводки сразу - у нас еще в одной комнате не до конца была трубка вставлена.
Поменяли окна и один балкон.
10 тыс. Требуют со всех. Но наверно не все платят))
Re: Вопросы по ремонту квартиры без отделки
AlexanderVasilev писал(а):Уважаемые соседи, подскажите пожалуйста:
1. У нас двухкомнатная распошонка. Кто-нибудь делал разделение гостиной для увеличения кухни? Т.е. кухня станет буквой «г» за счёт уменьшения гостиной с возведением стены разделяющей гостиную на две комнаты.
2. Где провод звонка во входную дверь?
3. У всех вводной электрический кабель к автоматам без изоляционной оболочки(т.е. в гофре идут отдельные провода)?
4. В УК при выдаче ключей сказали, что за бункер 10000 с нас. Это со всех у кого квартиры без отделки такой взнос требуют?
5. Меняли ли вы трубы для отопления и водоснабжения от застройщика? В смысле какого они качества?
1 провода на звонок вроде нет(видимо не предусмотрен)
2 проводку во всей квартире полностью менял, проводочка так себе была.
3 на отопление не менял, стояли рехау от застройщика(хорошего качества)
4 если у вас без отделки, то трубы водоснобжения нужно новые в квартиру вводить. У вас от стояка гвс и хвс выходят краны и всё.
Занимайся боксом или борьбой, и тогда тебе будет всё равно, кто и сколько жмёт
Re: Вопросы по ремонту квартиры без отделки
AlexanderVasilev писал(а):Уважаемые соседи, подскажите пожалуйста:
1. У нас двухкомнатная распошонка. Кто-нибудь делал разделение гостиной для увеличения кухни? Т.е. кухня станет буквой «г» за счёт уменьшения гостиной с возведением стены разделяющей гостиную на две комнаты.
2. Где провод звонка во входную дверь?
3. У всех вводной электрический кабель к автоматам без изоляционной оболочки(т.е. в гофре идут отдельные провода)?
4. В УК при выдаче ключей сказали, что за бункер 10000 с нас. Это со всех у кого квартиры без отделки такой взнос требуют?
5. Меняли ли вы трубы для отопления и водоснабжения от застройщика? В смысле какого они качества?
1. Не могу представить как Вы хотите сделать разделение гостиной. Можете нарисовать?
2. Звонок у Вас в квартире должен быть подключен.
3. -
4. Вы ремонт делать будете?! Мусор строительный будет?! Соответственно нужен контейнер! Вы можете сами нанять контейнер, можете заплатить УК за эту услугу - как проще и выгодней Вам так и делайте!
Единственный момент - складирование строительного мусора на контейнерных площадках внутри дома не допускается!
5. Трубы ХВС, ГВС менять, электрику менять, Отопление стоит REHAU - проверить!
Re: Вопросы по ремонту квартиры без отделки
Все коммуникации менять однозначно. Водную разводку от застройщика менять. Не забудьте про шумоизоляцию. Заранее выясните какой ремонт у соседей сверху. Если они делали шумоизоляцию пола, считайте вам крупно повезло. Если не, шумоизоляция потолка, пола, стояков водоснабжения, иначе слышно ВСЕ
-
megaultrauser
- Почетный житель
- Сообщения: 923
- Зарегистрирован: 25 окт 2017, 14:51
Re: Вопросы по ремонту квартиры без отделки
Если это распашонка во второй секции, то там по идее квартира без отделки и там нет ни проводки, ни разводки труб, ни звонка.
За контейнер (а не за "бункер"
) мы платили 10т.р.
За контейнер (а не за "бункер"
Re: Вопросы по ремонту квартиры без отделки
Скажите, а у кого какие претензии были к проводке и трубам от застройщика? Интересно просто.
Re: Вопросы по ремонту квартиры без отделки
megaultrauser писал(а):Если это распашонка во второй секции, то там по идее квартира без отделки и там нет ни проводки, ни разводки труб, ни звонка.
За контейнер (а не за "бункер") мы платили 10т.р.
У меня звонок был
Проводка минимальная тоже была.
Разводка ХВС и ГВС тоже была.
Re: Вопросы по ремонту квартиры без отделки
n3ville писал(а):Скажите, а у кого какие претензии были к проводке и трубам от застройщика? Интересно просто.
У меня были сомнения в качественности разводки полипропиленовыми трубами.
Не возможно проверить качество соединений поэтому все было заменено на REHAU RAUTITAN тут защита от дурака.
Но как писали выше даже с этой дуракоустойчивой системой могут накосячить
Re: Вопросы по ремонту квартиры без отделки
Philipp писал(а):n3ville писал(а):Скажите, а у кого какие претензии были к проводке и трубам от застройщика? Интересно просто.
У меня были сомнения в качественности разводки полипропиленовыми трубами.
Не возможно проверить качество соединений поэтому все было заменено на REHAU RAUTITAN тут защита от дурака.
Но как писали выше даже с этой дуракоустойчивой системой могут накосячить
А с проводкой были проблемы, может какие-то косяки находили?
Кто сейчас на конференции
Сейчас этот форум просматривают: нет зарегистрированных пользователей и 1 гость

