Уважаемые соседи!
Не забывайте заказывать пропуски на автомобили ваших гостей.
Телефон КПП: 8(926)076-76-78

Вопросы по ремонту квартиры без отделки

Аватара пользователя
Philipp
Легенда
Сообщения: 2866
Зарегистрирован: 23 сен 2015, 20:26
Секция: 2

Re: Вопросы по ремонту квартиры без отделки

Сообщение Philipp » 05 апр 2018, 15:37

AlexanderVasilev писал(а):
Philipp писал(а):
AlexanderVasilev писал(а):Уважаемые соседи, подскажите пожалуйста:
1. У нас двухкомнатная распошонка. Кто-нибудь делал разделение гостиной для увеличения кухни? Т.е. кухня станет буквой «г» за счёт уменьшения гостиной с возведением стены разделяющей гостиную на две комнаты.
2. Где провод звонка во входную дверь?
3. У всех вводной электрический кабель к автоматам без изоляционной оболочки(т.е. в гофре идут отдельные провода)?
4. В УК при выдаче ключей сказали, что за бункер 10000 с нас. Это со всех у кого квартиры без отделки такой взнос требуют?
5. Меняли ли вы трубы для отопления и водоснабжения от застройщика? В смысле какого они качества?


1. Не могу представить как Вы хотите сделать разделение гостиной. Можете нарисовать?
0dc201a0-1b56-4912-a2f2-0adff92ed9ba.jpg
2. Звонок у Вас в квартире должен быть подключен.
3. -
4. Вы ремонт делать будете?! Мусор строительный будет?! Соответственно нужен контейнер! Вы можете сами нанять контейнер, можете заплатить УК за эту услугу - как проще и выгодней Вам так и делайте!
Единственный момент - складирование строительного мусора на контейнерных площадках внутри дома не допускается!
5. Трубы ХВС, ГВС менять, электрику менять, Отопление стоит REHAU - проверить!


Филипп,
1. Не могу представить как Вы хотите сделать разделение гостиной. Можете нарисовать?
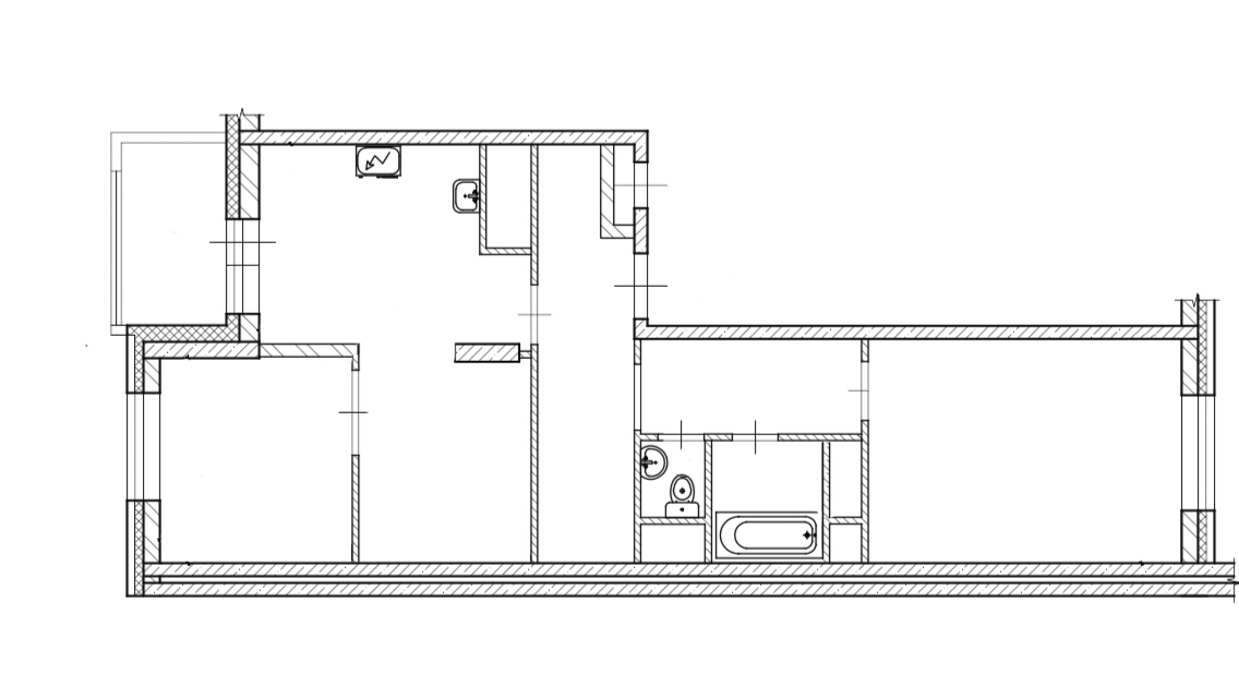
Вот нарисовал: красным отмечено где снести стену, зелёным где возвести, коричневым где будет межкомнатная дверьПеределка 2х комнат в 3 комнаты.jpg


Даже не знаю
2-секция.jpg


AlexanderVasilev
Новосёл
Сообщения: 31
Зарегистрирован: 05 мар 2018, 07:24
Этаж: 17

Re: Вопросы по ремонту квартиры без отделки

Сообщение AlexanderVasilev » 05 апр 2018, 16:58

Philipp писал(а):
AlexanderVasilev писал(а):
Philipp писал(а):
1. Не могу представить как Вы хотите сделать разделение гостиной. Можете нарисовать?
0dc201a0-1b56-4912-a2f2-0adff92ed9ba.jpg
2. Звонок у Вас в квартире должен быть подключен.
3. -
4. Вы ремонт делать будете?! Мусор строительный будет?! Соответственно нужен контейнер! Вы можете сами нанять контейнер, можете заплатить УК за эту услугу - как проще и выгодней Вам так и делайте!
Единственный момент - складирование строительного мусора на контейнерных площадках внутри дома не допускается!
5. Трубы ХВС, ГВС менять, электрику менять, Отопление стоит REHAU - проверить!


Филипп,
1. Не могу представить как Вы хотите сделать разделение гостиной. Можете нарисовать?
Вот нарисовал: красным отмечено где снести стену, зелёным где возвести, коричневым где будет межкомнатная дверьПеределка 2х комнат в 3 комнаты.jpg


Даже не знаю
2-секция.jpg


Вот попробовал 3D модель с реальными размерами сделать. Вроде бы всё влазит.
Вложения
Со стороны дивана взгляд на вход на кухню.jpg
От угла где окно.jpg
Комната у окна.jpg
Комната со входа на кухню.jpg
____________
С Уважением,
Александр

Аватара пользователя
Philipp
Легенда
Сообщения: 2866
Зарегистрирован: 23 сен 2015, 20:26
Секция: 2

Re: Вопросы по ремонту квартиры без отделки

Сообщение Philipp » 05 апр 2018, 16:59

AlexanderVasilev писал(а):
Philipp писал(а):
AlexanderVasilev писал(а):
Филипп,
1. Не могу представить как Вы хотите сделать разделение гостиной. Можете нарисовать?
Вот нарисовал: красным отмечено где снести стену, зелёным где возвести, коричневым где будет межкомнатная дверьПеределка 2х комнат в 3 комнаты.jpg


Даже не знаю
2-секция.jpg


Вот попробовал 3D модель с реальными размерами сделать. Вроде бы всё влазит.


Тоже хотел так сделать, но в итоге отказался.

Solar Eclipse
Свой
Сообщения: 296
Зарегистрирован: 15 ноя 2017, 11:58
Секция: 2

Re: Вопросы по ремонту квартиры без отделки

Сообщение Solar Eclipse » 05 апр 2018, 19:56

Мне кажется , очень маленькие комнаты? По сколько метров в итоге?

AlexanderVasilev
Новосёл
Сообщения: 31
Зарегистрирован: 05 мар 2018, 07:24
Этаж: 17

Re: Вопросы по ремонту квартиры без отделки

Сообщение AlexanderVasilev » 05 апр 2018, 23:26

Solar Eclipse писал(а):Мне кажется , очень маленькие комнаты? По сколько метров в итоге?

18/2=9 если на равные части
____________
С Уважением,
Александр

Аватара пользователя
s-urbanas
Житель
Сообщения: 92
Зарегистрирован: 20 окт 2017, 14:32

Re: Вопросы по ремонту квартиры без отделки

Сообщение s-urbanas » 17 апр 2018, 12:09

Philipp писал(а):
Тоже хотел так сделать, но в итоге отказался.


А как получилось у вас? Покажите пожалуйста.


Вернуться в «2-я секция.»

Кто сейчас на конференции

Сейчас этот форум просматривают: нет зарегистрированных пользователей и 1 гость