Уважаемые соседи!
Не забывайте заказывать пропуски на автомобили ваших гостей.
Телефон КПП: 8(926)076-76-78

Вопросы по ремонту квартиры без отделки

megaultrauser
Почетный житель
Сообщения: 923
Зарегистрирован: 25 окт 2017, 14:51

Re: Вопросы по ремонту квартиры без отделки

Сообщение megaultrauser » 02 апр 2018, 11:08

Philipp писал(а):
megaultrauser писал(а):Если это распашонка во второй секции, то там по идее квартира без отделки и там нет ни проводки, ни разводки труб, ни звонка.
За контейнер (а не за "бункер" :lol: ) мы платили 10т.р.

У меня звонок был :)
Проводка минимальная тоже была.
Разводка ХВС и ГВС тоже была.


Странно, у меня ничего этого не было


Аватара пользователя
German
Активист
Сообщения: 340
Зарегистрирован: 03 янв 2016, 20:32

Re: Вопросы по ремонту квартиры без отделки

Сообщение German » 02 апр 2018, 11:18

n3ville писал(а):Скажите, а у кого какие претензии были к проводке и трубам от застройщика? Интересно просто.

Мы оставили трубы от застройщика, ремонт был весной и заселились в мае. Когда наступила зима, у меня возникли сомнения относительно правильности такого решения в части труб отопления, т.к. одна батарея из всех греет слабее. Мы уже ее поменяли, и регулировали, но не помогло. Мой ремонтник говорит, что эта батарея дальше всех от разводки, и жидкость остывает, пока до нее дотечет. Не знаю, насколько это правда, там действительно далеко, но может есть какая-то помеха для нормальной циркуляции. Это единственное, что заставило задуматься.
Трубы водоснабжения не меняли, претензий нет. Электроразводка с розетками была, но все переделывали под свои нужды.

n3ville
Свой
Сообщения: 205
Зарегистрирован: 31 окт 2017, 12:39

Re: Вопросы по ремонту квартиры без отделки

Сообщение n3ville » 02 апр 2018, 11:21

German писал(а):
n3ville писал(а):Скажите, а у кого какие претензии были к проводке и трубам от застройщика? Интересно просто.

Мы оставили трубы от застройщика, ремонт был весной и заселились в мае. Когда наступила зима, у меня возникли сомнения относительно правильности такого решения в части труб отопления, т.к. одна батарея из всех греет слабее. Мы уже ее поменяли, и регулировали, но не помогло. Мой ремонтник говорит, что эта батарея дальше всех от разводки, и жидкость остывает, пока до нее дотечет. Не знаю, насколько это правда, там действительно далеко, но может есть какая-то помеха для нормальной циркуляции. Это единственное, что заставило задуматься.
Трубы водоснабжения не меняли, претензий нет. Электроразводка с розетками была, но все переделывали под свои нужды.

Мы пока тоже ничего не меняли, поэтому у меня возникли вопросы, почему все решили менять. По Водоснабжению вопросов пока не было. Все батареи греют очень сильно, зимой практически не включали их. А вот проводку я бы доработал, не везде есть розетки.

Аватара пользователя
Philipp
Легенда
Сообщения: 2866
Зарегистрирован: 23 сен 2015, 20:26
Секция: 2

Re: Вопросы по ремонту квартиры без отделки

Сообщение Philipp » 02 апр 2018, 11:38

n3ville писал(а):
Philipp писал(а):
n3ville писал(а):Скажите, а у кого какие претензии были к проводке и трубам от застройщика? Интересно просто.


У меня были сомнения в качественности разводки полипропиленовыми трубами.
Не возможно проверить качество соединений поэтому все было заменено на REHAU RAUTITAN тут защита от дурака.
Но как писали выше даже с этой дуракоустойчивой системой могут накосячить :)


А с проводкой были проблемы, может какие-то косяки находили?


Электрики от застройщика сами мне сказали лучше МЕНЯЙ :) Я не проверял, что не так с ней.
Еще до покупки квартиры было принято решение проводку делать с нуля . Все равно делать дополнительные розетки так почему не сделать все сразу по-человечески. Мне нужны розетки там где я хочу, а не там где их сделал застройщик.

Электрика, отопление, разводка воды - делается один раз и навсегда (все это будет под стяжкой).

Аватара пользователя
Philipp
Легенда
Сообщения: 2866
Зарегистрирован: 23 сен 2015, 20:26
Секция: 2

Re: Вопросы по ремонту квартиры без отделки

Сообщение Philipp » 02 апр 2018, 11:41

n3ville писал(а):
German писал(а):
n3ville писал(а):Скажите, а у кого какие претензии были к проводке и трубам от застройщика? Интересно просто.

Мы оставили трубы от застройщика, ремонт был весной и заселились в мае. Когда наступила зима, у меня возникли сомнения относительно правильности такого решения в части труб отопления, т.к. одна батарея из всех греет слабее. Мы уже ее поменяли, и регулировали, но не помогло. Мой ремонтник говорит, что эта батарея дальше всех от разводки, и жидкость остывает, пока до нее дотечет. Не знаю, насколько это правда, там действительно далеко, но может есть какая-то помеха для нормальной циркуляции. Это единственное, что заставило задуматься.
Трубы водоснабжения не меняли, претензий нет. Электроразводка с розетками была, но все переделывали под свои нужды.

Мы пока тоже ничего не меняли, поэтому у меня возникли вопросы, почему все решили менять. По Водоснабжению вопросов пока не было. Все батареи греют очень сильно, зимой практически не включали их. А вот проводку я бы доработал, не везде есть розетки.


В квартирах без отделки целесообразней все поменять, чтобы избежать в будущем возможных проблем!

n3ville
Свой
Сообщения: 205
Зарегистрирован: 31 окт 2017, 12:39

Re: Вопросы по ремонту квартиры без отделки

Сообщение n3ville » 02 апр 2018, 12:00

Philipp писал(а):
n3ville писал(а):
German писал(а):Мы оставили трубы от застройщика, ремонт был весной и заселились в мае. Когда наступила зима, у меня возникли сомнения относительно правильности такого решения в части труб отопления, т.к. одна батарея из всех греет слабее. Мы уже ее поменяли, и регулировали, но не помогло. Мой ремонтник говорит, что эта батарея дальше всех от разводки, и жидкость остывает, пока до нее дотечет. Не знаю, насколько это правда, там действительно далеко, но может есть какая-то помеха для нормальной циркуляции. Это единственное, что заставило задуматься.
Трубы водоснабжения не меняли, претензий нет. Электроразводка с розетками была, но все переделывали под свои нужды.

Мы пока тоже ничего не меняли, поэтому у меня возникли вопросы, почему все решили менять. По Водоснабжению вопросов пока не было. Все батареи греют очень сильно, зимой практически не включали их. А вот проводку я бы доработал, не везде есть розетки.


В квартирах без отделки целесообразней все поменять, чтобы избежать в будущем возможных проблем!

В том то и дело, у нас с отделкой. И я вот задумался теперь :geek:

Solar Eclipse
Свой
Сообщения: 296
Зарегистрирован: 15 ноя 2017, 11:58
Секция: 2

Re: Вопросы по ремонту квартиры без отделки

Сообщение Solar Eclipse » 02 апр 2018, 13:59

Philipp писал(а):
n3ville писал(а):
Philipp писал(а):
У меня были сомнения в качественности разводки полипропиленовыми трубами.
Не возможно проверить качество соединений поэтому все было заменено на REHAU RAUTITAN тут защита от дурака.
Но как писали выше даже с этой дуракоустойчивой системой могут накосячить :)


А с проводкой были проблемы, может какие-то косяки находили?


Электрики от застройщика сами мне сказали лучше МЕНЯЙ :) Я не проверял, что не так с ней.
Еще до покупки квартиры было принято решение проводку делать с нуля . Все равно делать дополнительные розетки так почему не сделать все сразу по-человечески. Мне нужны розетки там где я хочу, а не там где их сделал застройщик.

Электрика, отопление, разводка воды - делается один раз и навсегда (все это будет под стяжкой).


мы при замене электрики - вытащили один оплавленный провод :shock: - думайте сами, что за электрика там!

По поводу отопления - в идеале трубки рехау должны быть целостные, с минимум соединений. У нас же жесть была, пайка на пайке. такое ощущение, что их собирали из кусочков. Сами знаете - чем больше мест соединения - тем больше шанс , что что-то потечет.

Сантехники местные говорили, что из под стяжки есть протечки в квартирах с ремонтом. пугали или нет , не знаю.

Miss_S
Активист
Сообщения: 361
Зарегистрирован: 06 июн 2017, 16:01
Секция: 3

Re: Вопросы по ремонту квартиры без отделки

Сообщение Miss_S » 02 апр 2018, 22:47




Сантехники местные говорили, что из под стяжки есть протечки в квартирах с ремонтом. пугали или нет , не знаю.

Нам сантехники тоже самое сказали, что оч большое количество протечек в квартирах от застройщика, что только успевают переделывать

Кофеманка
Почетный житель
Сообщения: 1043
Зарегистрирован: 25 сен 2015, 19:48
Секция: 4

Re: Вопросы по ремонту квартиры без отделки

Сообщение Кофеманка » 03 апр 2018, 12:09

Нас затапливали соседи, пришлось вызвать сантехников и им вскрывали полы для ремонта. А у нас остались огромные желтые пятна в ванной и коридоре. До коридора еще с ремонтом не добрались, а в ванной отремонтировали - трубы там заменили сразу, но вот задумались, что керамогранитные полы постелили в коридоре, без замены :oops:
Не ищите лучшее, а ищите - своё. Ведь, лучшее не всегда станет вашим, зато, своё всегда лучше!

AlexanderVasilev
Новосёл
Сообщения: 31
Зарегистрирован: 05 мар 2018, 07:24
Этаж: 17

Re: Вопросы по ремонту квартиры без отделки

Сообщение AlexanderVasilev » 05 апр 2018, 13:10

Philipp писал(а):
AlexanderVasilev писал(а):Уважаемые соседи, подскажите пожалуйста:
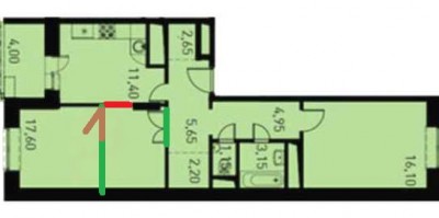
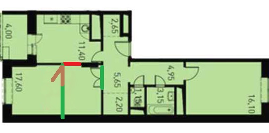
1. У нас двухкомнатная распошонка. Кто-нибудь делал разделение гостиной для увеличения кухни? Т.е. кухня станет буквой «г» за счёт уменьшения гостиной с возведением стены разделяющей гостиную на две комнаты.
2. Где провод звонка во входную дверь?
3. У всех вводной электрический кабель к автоматам без изоляционной оболочки(т.е. в гофре идут отдельные провода)?
4. В УК при выдаче ключей сказали, что за бункер 10000 с нас. Это со всех у кого квартиры без отделки такой взнос требуют?
5. Меняли ли вы трубы для отопления и водоснабжения от застройщика? В смысле какого они качества?


1. Не могу представить как Вы хотите сделать разделение гостиной. Можете нарисовать?
0dc201a0-1b56-4912-a2f2-0adff92ed9ba.jpg
2. Звонок у Вас в квартире должен быть подключен.
3. -
4. Вы ремонт делать будете?! Мусор строительный будет?! Соответственно нужен контейнер! Вы можете сами нанять контейнер, можете заплатить УК за эту услугу - как проще и выгодней Вам так и делайте!
Единственный момент - складирование строительного мусора на контейнерных площадках внутри дома не допускается!
5. Трубы ХВС, ГВС менять, электрику менять, Отопление стоит REHAU - проверить!


Филипп,
1. Не могу представить как Вы хотите сделать разделение гостиной. Можете нарисовать?
Вот нарисовал: красным отмечено где снести стену, зелёным где возвести, коричневым где будет межкомнатная дверь
Переделка 2х комнат в 3 комнаты.jpg
____________
С Уважением,
Александр


Вернуться в «2-я секция.»

Кто сейчас на конференции

Сейчас этот форум просматривают: нет зарегистрированных пользователей и 3 гостя