Смотрите, что откопала:
Причины, по которым могут запретить парковку во дворе жилого дома и установить знак “Стоянка/остановка запрещена”. Необходимость проезда или возможности остановки транспортных средств к каким-либо объектам
Такие знаки могут установить какие-либо организации по согласованию с ГИБДД и городской администрацией. Припаркованные авто мешают проезду к банку инкассаторской машине? Коммунальным службам из двора невозможно вывести мусор? Стало ясно, что в ваш двор не протиснется пожарная машина? В вашем дворе есть какой-либо социально-значимый объект, к которому необходимо обеспечить беспрепятственный проезд? Во всех этих случаях заинтересованные лица могут предпринять попытку добиться установки знака, а иногда им это удается. Знак стоит правомерно? Извольте выполнять его требования, какими бы бестолковыми они вам не казались… Ну если он конечно стоит еще и по ГОСТу.
Вот отсюда https://юридическая-инициатива.рф/vo-dv ... o-zakonno/
Уважаемые соседи!
Не забывайте заказывать пропуски на автомобили ваших гостей.
Телефон КПП: 8(926)076-76-78
Не забывайте заказывать пропуски на автомобили ваших гостей.
Телефон КПП: 8(926)076-76-78
Пожарная безопасность нашего дома
-
новосел2016
- Коренной житель
- Сообщения: 564
- Зарегистрирован: 11 фев 2016, 21:11
- Секция: 1
Re: Пожарная безопасность нашего дома
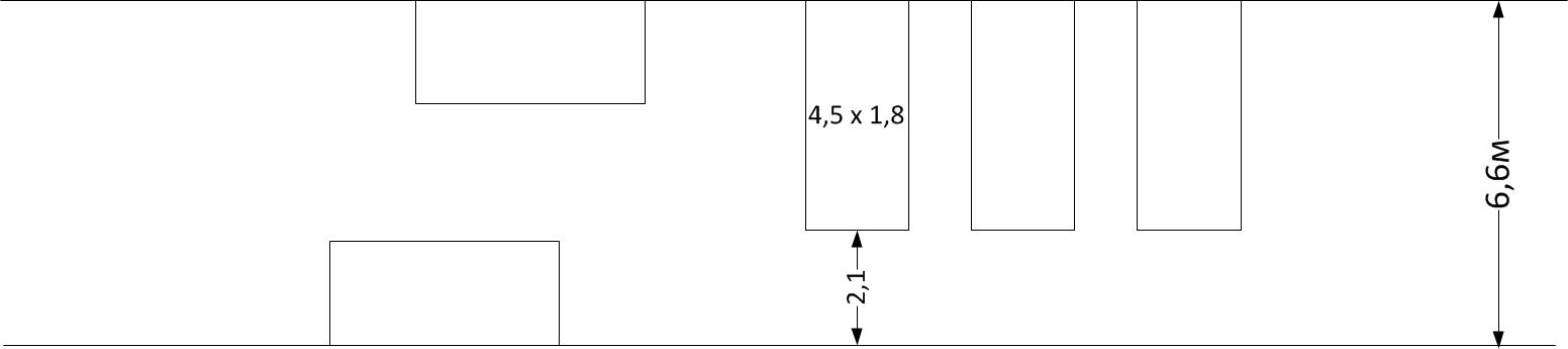
Miss_S писал(а):новосел2016 писал(а):Miss_S писал(а):Ну как? Проползет тут пожарная машина? Вопросы остались?111.jpg
Поверьте нигде люди после расширения так не поступали. И на первоначальном Вашем листе нарисовано как то по другому.
Откуда вы знаете, кто и как поступит. Вы хотели аргументации с размерами. По моему более чем очевидно. На первом варианте не так, согласна, не считала еще. Но так может быть? Может. От чего ушли к тому пришли. На сознательность автолюбителей надеяться бессмысленно
Там будет разметка, и если какой то дебил раскарячить машину то это единичный случай. Ну и мы можем выйти на улицу и нас могут ограбить. Так может быть? Может. И что теперь на улицу не ходить?
Re: Пожарная безопасность нашего дома
Станиславский писал(а):Solar Eclipse писал(а):Miss_S писал(а):Ну как? Проползет тут пожарная машина? Вопросы остались?111.jpg
Вопросов много. Не поленитесь - вернитесь на пару страниц назад и посмотрите рисунки Филиппа. Сейчас расстояние между машинами 2,4 метра. И уже сейчас мы проезжаем периодически складывая зеркала. По вашим рассчетам при ширине 2,1 - машина просто не проедет)))) А про перпендикулярно дороге припарковаться при ваших рассчетах я вообще молчу.!!!! Это невозможно технически!!!!
Ну почему же не возможно? Очень даже возможно, особенно если авто имеет функцию подпрыгивания на месте, разворота в воздухе под нужным углом и приземления.![]()
Страшно, если Мисс обладает водительскими правами и бороздит просторы городских дорог.
Товарищ театрал, я вас не оскорбляла, так будьте любезны острословить на театральных подмостках, или на панели, где вы там обычно времяпроводите
- White Spirit
- Активист
- Сообщения: 449
- Зарегистрирован: 26 фев 2018, 15:32
- Секция: 1
Re: Пожарная безопасность нашего дома
К теме замков-вертушек
Не помню кто там говорил, что у них все замки только с ключом и все вокруг в этом виноваты, а точнее УК.
Мы на своем этаже за свой счет устанавливали эти замки-вертушки, которые стоят сущие копейки. Ключи сдали в диспетчерскую от всех блоков. И так делало большинство известных мне здесь жильцов и все сдали ключи в диспетчерскую. Возьмите и установите себе такие замки.
Не помню кто там говорил, что у них все замки только с ключом и все вокруг в этом виноваты, а точнее УК.
Мы на своем этаже за свой счет устанавливали эти замки-вертушки, которые стоят сущие копейки. Ключи сдали в диспетчерскую от всех блоков. И так делало большинство известных мне здесь жильцов и все сдали ключи в диспетчерскую. Возьмите и установите себе такие замки.
-
megaultrauser
- Почетный житель
- Сообщения: 923
- Зарегистрирован: 25 окт 2017, 14:51
Re: Пожарная безопасность нашего дома
новосел2016 писал(а):Потому что возвращаясь к истокам для двора без машин надо набрать 2/3 подписей всех собственников. Соберут ли их сторонники этой идеи скажем мягко - бабушка надвое сказала ( мое личное мнение нет). Вы то сами как думаете? Да это дело то и не быстрое для начала надо по моему ТСЖ организовать вроде. А расширить можно очень быстро.
По поводу затрат на это, так это идёт за счёт УК, то бишь застройщика, а для такого монстра как ФС - 6 поверьте эта стоимость такие копейки, для Вас трата рубля будет ощутимее чем это для них.
Если просто, извиняюсь за выражение, "тупо" собирать подписи, то, возможно, и не соберем. Но если доходчиво донести до людей мнение специалиста, как товарищ пожарник на форуме, то, думаю, шансы есть. Я вот сначала сам колебался, а сейчас, думаю, да, надо делать двор без машин.
Это дело не быстрое, согласен с вами, а расширять можно и нужно сейчас.
А по поводу затрат приведу пример - столбики не везде поставили. Причина - нет средств. И это не за счет УК, а за счет наших взносов.
-
Solar Eclipse
- Свой
- Сообщения: 296
- Зарегистрирован: 15 ноя 2017, 11:58
- Секция: 2
Re: Пожарная безопасность нашего дома
megaultrauser писал(а):новосел2016 писал(а):Потому что возвращаясь к истокам для двора без машин надо набрать 2/3 подписей всех собственников. Соберут ли их сторонники этой идеи скажем мягко - бабушка надвое сказала ( мое личное мнение нет). Вы то сами как думаете? Да это дело то и не быстрое для начала надо по моему ТСЖ организовать вроде. А расширить можно очень быстро.
По поводу затрат на это, так это идёт за счёт УК, то бишь застройщика, а для такого монстра как ФС - 6 поверьте эта стоимость такие копейки, для Вас трата рубля будет ощутимее чем это для них.
Если просто, извиняюсь за выражение, "тупо" собирать подписи, то, возможно, и не соберем. Но если доходчиво донести до людей мнение специалиста, как товарищ пожарник на форуме, то, думаю, шансы есть. Я вот сначала сам колебался, а сейчас, думаю, да, надо делать двор без машин.
Это дело не быстрое, согласен с вами, а расширять можно и нужно сейчас.
А по поводу затрат приведу пример - столбики не везде поставили. Причина - нет средств. И это не за счет УК, а за счет наших взносов.
А в чем различие средств УК и наших взносов? Все наши взносы (если вы имеете в виду квартплату) - это и есть средства УК. Личных у них априори нет.
Re: Пожарная безопасность нашего дома
Станиславский писал(а):новосел2016 писал(а):Кстати вышел сейчас на балкон посчитал количество припаркованных машин во дворе моей секции это двор секции 1-7 их стоит 88 штук. Со стороны секции 1-2 не знаю, но думаю цифры сопоставимые, плюс дворы секций 11 и 17, плюс двор где вет. клиника, плюс парковка на дороге вдоль труб и дальше. Получается машин 400 если не 500. На объездной дороге огромное количество машин паркуется, которые ставят во дворе но места сейчас им внутри просто не досталось и которые прекрасно понимают что будет на объездной в случае изгнания машин из двора. Вот и считайте сколько это человек и смело умножайте на 3, а то и на 4 это их жёны, дети, родственники которые с ними проживают. У меня глубокие сомнения что они поспешат отдать свои подписи за двор без машин ( нет наверное кто то и подпишет но их явно будет очень мало).
Дело даже не в подписях. Люди ратующие за закрытый двор в ситуации когда совершенно не решена проблема с парковкой не думают о том, что весь поток из двора хлынет на внешнюю сторону дома. И как тогда будет ситуация с подъездом пожарного транспорта к дому? Дворы то очистим и в эти пустые замечательные дворы пожарка не заедет, и к внешней стороне дома тому же транспорту будет не пробиться. Но это же фигня! Главное чтобы дворы были свободны. Узколобые, что тут скажешь.
Поддерживаю!
ах, если бы...не жизнь была, а песня БЫ
Re: Пожарная безопасность нашего дома
Solar Eclipse писал(а):Miss_S писал(а):Расширение не решит проблему, потому что через некоторое время парковаться будут вот так, и проблема вернетсяБезымянный.png
Боюсь спросить, сколько лет вы за рулем))))
А я боюсь,что она вообще будет за рулем.
ах, если бы...не жизнь была, а песня БЫ
-
megaultrauser
- Почетный житель
- Сообщения: 923
- Зарегистрирован: 25 окт 2017, 14:51
Re: Пожарная безопасность нашего дома
Solar Eclipse писал(а):А в чем различие средств УК и наших взносов? Все наши взносы (если вы имеете в виду квартплату) - это и есть средства УК. Личных у них априори нет.
Да просто товарищ тут написал, что для УК это копейки, оплатят без проблем.
Я имел в виду, что бюджет не резиновый.
Re: Пожарная безопасность нашего дома
ЖК с "дворами без машин" - это ЖК, где предусмотрены и введены в эксплуатацию подземные парковки либо парковки в отдельно стоящих зданиях. идею "двор без машин" было бы возможно реализовать при условии продажи машиномест по адекватной рыночной цене не более 800.000 руб. за машиноместо, а лучше - включения стоимости машиноместа в стоимость квартиры.
либо предоставления возможности пользования паркингом по адекватной рыночной цене 3.500-4.000 руб. в месяц за машиноместо.
данные о "рыночности" цены из собственного опыта, к примеру стоимость подземной парковки в ЖК "Авеню" премиум класса м.Чертаново, а также в микрорайоне Северное Чертаново.
в этом случае сами бы ставили свои "ведра" на подземной парковке и голосовали за "двор без машин".
а пока "двор без машин" это только мечты.
либо предоставления возможности пользования паркингом по адекватной рыночной цене 3.500-4.000 руб. в месяц за машиноместо.
данные о "рыночности" цены из собственного опыта, к примеру стоимость подземной парковки в ЖК "Авеню" премиум класса м.Чертаново, а также в микрорайоне Северное Чертаново.
в этом случае сами бы ставили свои "ведра" на подземной парковке и голосовали за "двор без машин".
а пока "двор без машин" это только мечты.
Вернуться в «Основной форум Z-Tower»
Кто сейчас на конференции
Сейчас этот форум просматривают: нет зарегистрированных пользователей и 4 гостя

