Добрый день, Соседи!
Поделитесь опытом, делал ли кто перепланировку в двушке-распашонке? Что именно меняли и почему? Вечный вопрос во всех двушках - что делать с большой комнатой? Делать из нее родительскую спальню с кроватью или гостиную с диваном? А может быть гостиную-спальню и с тем и с другим, но тогда она станет меньше. В общем поделитесь опытом : ) Фотки планировки приветствуются ))
Уважаемые соседи!
Не забывайте заказывать пропуски на автомобили ваших гостей.
Телефон КПП: 8(926)076-76-78
Не забывайте заказывать пропуски на автомобили ваших гостей.
Телефон КПП: 8(926)076-76-78
Перепланировка распашонки
Re: Перепланировка распашонки
s-urbanas писал(а):Добрый день, Соседи!
Поделитесь опытом, делал ли кто перепланировку в двушке-распашонке? Что именно меняли и почему? Вечный вопрос во всех двушках - что делать с большой комнатой? Делать из нее родительскую спальню с кроватью или гостиную с диваном? А может быть гостиную-спальню и с тем и с другим, но тогда она станет меньше. В общем поделитесь опытом : ) Фотки планировки приветствуются ))
Мы вот на таком варианте остановились. Жалко большую комнату делить глобально.
Re: Перепланировка распашонки
Miss_S писал(а): Мы вот на таком варианте остановились. Жалко большую комнату делить глобально.
Вроде выглядит ничего так. Есть мнение, что на кровать в гостиной обязательно кто то будет садиться из гостей, что наверное не очень хорошо. Поэтому многие отказываются от кровати в пользу дивана или же кровати-трансформера. Сейчас тоже рассматриваем эти варианты, то трансформер мне кажется выйдет дороже и будем менее удобен в эксплуатации. А сколько квадратов у вас большая комната? Шкаф подразумевается здесь? Вы заказывали дизайн в этой студии или это просто фото с интернета?
Re: Перепланировка распашонки
s-urbanas писал(а):Miss_S писал(а): Мы вот на таком варианте остановились. Жалко большую комнату делить глобально.
Вроде выглядит ничего так. Есть мнение, что на кровать в гостиной обязательно кто то будет садиться из гостей, что наверное не очень хорошо. Поэтому многие отказываются от кровати в пользу дивана или же кровати-трансформера. Сейчас тоже рассматриваем эти варианты, то трансформер мне кажется выйдет дороже и будем менее удобен в эксплуатации. А сколько квадратов у вас большая комната? Шкаф подразумевается здесь? Вы заказывали дизайн в этой студии или это просто фото с интернета?
Это фото с интернета. Наберите в поиске спальня гостиная, там еще много симпатичных вариантов, где то стеллаж предполагается, где штора на потолке, зонирующая комнату. Гости бывают не так часто, а спим мы каждый день.
Последний раз редактировалось Miss_S 21 май 2018, 14:50, всего редактировалось 1 раз.
Re: Перепланировка распашонки
s-urbanas писал(а):Добрый день, Соседи!
Поделитесь опытом, делал ли кто перепланировку в двушке-распашонке? Что именно меняли и почему? Вечный вопрос во всех двушках - что делать с большой комнатой? Делать из нее родительскую спальню с кроватью или гостиную с диваном? А может быть гостиную-спальню и с тем и с другим, но тогда она станет меньше. В общем поделитесь опытом : ) Фотки планировки приветствуются ))
Добрый вечер! Попробуйте обратиться сюда Вариант планировки квартиры. Сам воспользовался этим предложением.
Re: Перепланировка распашонки
ALEXON писал(а): Сам воспользовался этим предложением.
Скажите, а вы воспользовались их бесплатным предложением или покупали проект?
Re: Перепланировка распашонки
s-urbanas писал(а):Скажите, а вы воспользовались их бесплатным предложением или покупали проект?
Эскиз был сделан бесплатно. Он есть в той ветке форума.
-
AlexanderVasilev
- Новосёл
- Сообщения: 31
- Зарегистрирован: 05 мар 2018, 07:24
- Этаж: 17
Re: Перепланировка распашонки
s-urbanas писал(а):Добрый день, Соседи!
Поделитесь опытом, делал ли кто перепланировку в двушке-распашонке? Что именно меняли и почему? Вечный вопрос во всех двушках - что делать с большой комнатой? Делать из нее родительскую спальню с кроватью или гостиную с диваном? А может быть гостиную-спальню и с тем и с другим, но тогда она станет меньше. В общем поделитесь опытом : ) Фотки планировки приветствуются ))
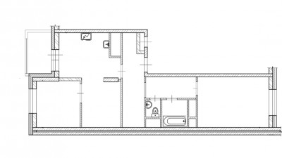
Вот так сделал, ещё в процессе ремонта...
- Вложения
-
- 0374FDA7-B143-4EC6-A4C8-816A5DAD3A4A.jpeg (16.92 КБ) 11549 просмотров
-
- 00FACA83-94B2-4190-AC09-D42F00C1C560.jpeg (23.54 КБ) 11549 просмотров
-
- 2DA04DAA-2B0C-4C13-AA84-39BC8DBC41E9.jpeg (21.3 КБ) 11549 просмотров
-
- D6899B23-394A-4F93-8707-6F44CD6B777C.jpeg (29.91 КБ) 11549 просмотров
-
- 19444328-44A6-4572-951E-52BBFE827440.jpeg (26.16 КБ) 11549 просмотров
____________
С Уважением,
Александр
С Уважением,
Александр
Re: Перепланировка распашонки
AlexanderVasilev писал(а): Вот так сделал, ещё в процессе ремонта...
Уже живете в такой планировке? Не жалеете сейчас, что забрали окно у гостиной?
-
AlexanderVasilev
- Новосёл
- Сообщения: 31
- Зарегистрирован: 05 мар 2018, 07:24
- Этаж: 17
Re: Перепланировка распашонки
s-urbanas писал(а):"s-urbanas писал(а):
Уже живете в такой планировке? Не жалеете сейчас, что забрали окно у гостиной?
Не живу. По сути в гостиной есть окно, свет идёт от кухонного окна.
Получилась кухня-гостинная: 21 кВ.м.
____________
С Уважением,
Александр
С Уважением,
Александр
Кто сейчас на конференции
Сейчас этот форум просматривают: нет зарегистрированных пользователей и 1 гость

